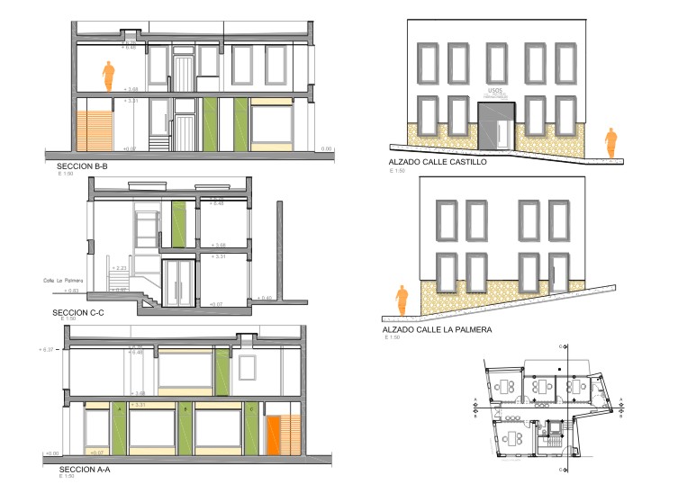
Multipurpose BuildingHornachuelos. Córdoba, 2018 - Status In progress Team Antonio Raso, Architect César Egea, Architect Antonio Durán, Engineer Location Hornachuelos. Córdoba. Spain Client Ayuntamiento Hornachuelos